Casa à venda - Villagio Mundo Novo, Franca/SP
Código: 22957 - Villagio Mundo Novo
R$ 950.000,00
Casa - Em Obras
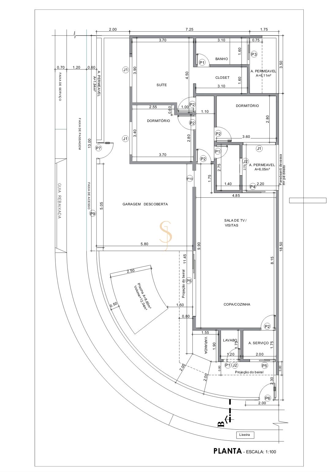
Projeto aprovado de casa térrea com 119,47 m² de área construída, em terreno de 242,62 m² (11x22), com excelente distribuição dos ambientes e área de lazer com piscina.Excelente oportunidade para quem deseja adquirir um imóvel em fase de projeto, com arquitetura moderna e ótimo aproveitamento de espaço.
O projeto contempla:
3 dormitórios, sendo 1 suíte
Banheiro social
Lavabo na área gourmet
Sala de TV integrada
Cozinha funcional
Área de serviço
Vaga para 2 veículos
Piscina
Planta inteligente, ambientes bem distribuídos e conceito contemporâneo, unindo conforto, funcionalidade e potencial de valorização.
Ideal para compra antecipada em uma das regiões que mais crescem na cidade.
Acesse nosso site:https://www.gpsnegociosimobiliarios.com.br
3 dormitórios
Garagem: 2
Banheiros: 4
Área Construída: 224,62
Terreno: 242,62 m²
Avalia Permuta: Não
RECOMENDADOS